施 工 実 例|外構工事[オープンスタイル]+植栽工事
※各写真はクリックすると拡大してご覧いただけます。
<外構・エクステリア・植栽工事着工前!>
今回は、新築外構工事のご依頼です。
造成区画内で、敷地路盤面が接道路盤面より高い所にある敷地で、敷地回りがコンクリート擁璧・コンクリート階段で造られている案件のご提案となります。
まず、敷地に対してどの位置に建物が建ち、何処に玄関があるかの確認から拝見ささていただきました。
敷地接道道路より、コンクリート階段13・4段を上り、階段を上り切った5m程度奥に、建物の玄関ポーチがある条件でした。
<外構・エクステリア・植栽工事完成!>
まず、第一印象、登り切ったコンクリート階段から玄関までのアクセス導線が一直線と言う事でした。
比較的に今回の配置条件といたしまして、アクセスアプローチになりそうなエリアに余裕のある条件でしたので、一直線の導線が悪い分けではありませんが、今回の余裕のある条件を活かして動きのある導線(アクセスアプローチ)をご提案させていただきました。
その動きのある導線を活かす軸となる起点を、階段を上り切った所に、お家の顔となる門塀を造り、それを起点に回廊するイメージでアクセスアプローチのご提案をささていただき、最終的に完成写真の様になりました。
※施工期間 実働約14日間程度 ※施工範囲 既存擁璧上3方向(化粧ブロック+普通ブロック)+メッシュフェンスH800 門塀化粧ブロック造W800×H1500程度 口金式ポスト ろロートアイアン調表札 アプローチ自然石平板+洗い出し風コンクリート打ち 植栽+ゴロタ石+化粧砂利 据え置き型マリンランプ調 別途自動タイマー設置 \1,020,000(税込み)
※各写真はクリックすると拡大してご覧いただけます。
<外構・エクステリア・植栽工事着工前!>
今回は、新築外構工事のご依頼です.
庭部分の土留め工事及び、駐車場部の外構工事施工となります。
<外構・エクステリア・植栽工事完成!>
礎工事よりも前に、先行工事として、東側隣地境界部のブロックを積み、建物完了後、仕上工事として、南側庭部の土留め工事及び駐車場部の施工となりました。
組積部分の仕上については、ジョリパット仕上げとし、フェンス部は建物のサッシカラーと合わせ、色数を増やさない様にいたしました。
正面部の目隠しの壁は、スリットを設ける事により、長璧に見られる、地震の揺れ等で生じるねじれクラック防止や、敷地内壁側の風が淀まないようにと、採光をとる為にという目的で作製しました。
駐車場仕上ベースはコンクリートなのですが、駐車位置を限定した際に、残りの残地部をコンクリートだけだとさっぱりしすぎて、建物と見合わない為、費用を抑えながらも、玄関までのアプローチと分る様に、洗い出し風のコンクリートと、本体と同じタイルを用いて色付けをしました。
※施工期間 実働30間 ※施工範囲 北側既存大谷石積み直し 東側先行土留めブロック+アルミフェンスH800 南側土留めブロック積み+左官モルタル下地+ジョリパット仕上げ 門塀ブロック下地+ジョリパット仕上げ+口金式ポスト+表札 アクセントボーダータイル+スクリーンレンガ アプローチ洗い出し風コンクリート+300角タイル貼り 駐車場コンクリート打ち 庭部コーライ芝+シンボルツリー(シマトネリコ)+門塀前灌木類・下草類・化粧砂利 駐車ポール(埋没式)※施工費用 \2,100,000-(税込み)
※各写真はクリックすると拡大してご覧いただけます。
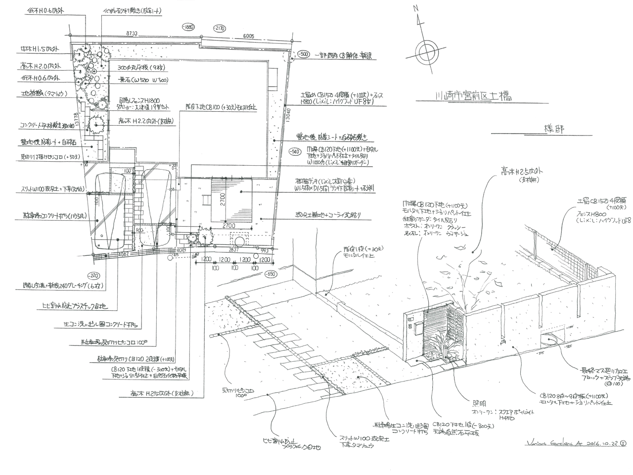
<外構・エクステリア・植栽工事着工前!>
今回のお問い合わせ内容は、新築外構・植栽工事のご依頼です。
お打ち合わせの段階で、駐車場2台分と中庭工事(パティオ)、外周部のブロックフェンス。お家の顔となる門塀及びシステム門柱。それと、「必ず設置して下さい!」と言うご要望で、宅配BOXなどでした。
<外構・エクステリア・植栽工事完成!>
ご入居後のお打ち合わせと言う事もあり、建物の外装全体や、内部の造りなどから少しずつイメージを膨らませ、最終的なご提案を図の様にさせていただきました。
まず、外装のトーンも単色ですので、外構のマテリアル部分にもなるべく彩を増やさぬ様にし、構成するライン(線)も、シュアープな感じを出す為に直線的な線で構成いたしました。
建物の玄関が、外部から見える部分には無く、誰しもが分りにくいので、玄関まで導く構成として、門塀を造り、アプローチ部分にマテリアルを使用し、メインアプローチとしての認識付けをし表現いたしました。
露骨に宅配BOXエリアを設けると、外構全体のデザインイメージが悪くなる為と設けるエリアによっては、導線がその部分だけ突出してしまう為、なんとか日常的な導線の中に宅配BOXエリアを入れたく、最終的に門塀の裏に設置をいたしました。ここですと、外部から見ても露骨に分らず、尚且つ、外構の全体的なデザインには影響せずに全体的に綺麗に見える場所で落ち着きました。
アプローチを進んで玄関へ向かいますと、正面に中庭スペースが見え、彩とりどりの植物達がお目見えし、建主様や、来客者の方々の目や心を和ましてくれる空間としてご提案いたしました。夜には、シンボルツリー下の照明が点灯する為、温かい明りと共に、一瞬「ほっ!」とする気持ちになると思います。
※施工期間 実働28日間 ※施工範囲 外周部化粧ブロック メッシュフェンスH800 建物周り白砕石敷き+防草シート敷き 駐車場コンクリート+生コン洗い出し風コンクリート打ち アプローチ化粧平板575×575+275×575 門塀ブロック下地+モルタル下地+ジョリパット仕上げ 宅配BOX スクリーンブロック ※施工費用\2,372,000(税込み)
![ヴァリアス・ガーデンズの施工例外構工事[オープンスタイル外構+植栽]横須賀市富士見町S様邸外構工事完成写真1](../images/images/ex10s10.jpg)

![ヴァリアス・ガーデンズの施工例外構工事[オープンスタイル+植栽]横須賀市富士見町S様邸外構・エクステリア・植栽工事着工前写真2](../images/images/ex10s11.jpg)
![ヴァリアス・ガーデンズの施工例外構工事[オープンスタイル+植栽]横須賀市富士見町S様邸外構・エクステリア・植栽工事完成写真1](../images/images/ex10s12.jpg)
![ヴァリアス・ガーデンズの施工例外構工事[オープンスタイル+植栽]横須賀市富士見町S様邸外構工・エクステリア・植栽工事完成写真2](../images/images/ex10s13.jpg)
![ヴァリアス・ガーデンズの施工例外構工事[オープンスタイル+植栽]川崎市宮前区土橋K様邸外構工事完成写真1](../images/images/ex09s54.jpg)

![ヴァリアス・ガーデンズの施工例外構工事[オープンスタイル+植栽]川崎市宮前区土橋K様邸外構・エクステリア・植栽工事着工前写真2](../images/images/ex09s55.jpg)
![ヴァリアス・ガーデンズの施工例外構工事[オープンスタイル+植栽]川崎市宮前区土橋K様邸外構・エクステリア・植栽工事完成写真1](../images/images/ex09s56.jpg)
![ヴァリアス・ガーデンズの施工例外構工事[オープンスタイル+植栽]川崎市宮前区土橋K様邸外構・エクステリア・植栽工事完成写真2](../images/images/ex09s57.jpg)
![ヴァリアス・ガーデンズの施工例外構工事[オープンスタイル+植栽]川崎市宮前区土橋K様邸外構・エクステリア・植栽工事完成写真3](../images/images/ex09s58.jpg)
![ヴァリアス・ガーデンズの施工例外構工事[オープンスタイル+植栽]川崎市宮前区土橋K様邸外構・エクステリア・植栽工事完成写真4](../images/images/ex09s59.jpg)
![ヴァリアス・ガーデンズの施工例外構工事[オープンスタイル+植栽]川崎市宮前区土橋K様邸外構・エクステリア・植栽工事完成写真5](../images/images/ex09s60.jpg)
![ヴァリアス・ガーデンズの施工例外構工事[オープンスタイル+植栽]川崎市多摩区菅北浦M様邸外構工事完成写真1](../images/images/ex09s12.jpg)

![ヴァリアス・ガーデンズの施工例外構工事[オープンスタイル+植栽]川崎市多摩区菅北浦M様邸外構・エクステリア・植栽工事着工前写真2](../images/images/ex09s13.jpg)
![ヴァリアス・ガーデンズの施工例外構工事[オープンスタイル+植栽]川崎市多摩区菅北浦M様邸外構・エクステリア・植栽工事着工前写真3](../images/images/ex09s14.jpg)
![ヴァリアス・ガーデンズの施工例外構工事[オープンスタイル+植栽]川崎市多摩区菅北浦M様邸外構・エクステリア・植栽工事着工前写真4](../images/images/ex09s15.jpg)
![ヴァリアス・ガーデンズの施工例外構工事[オープンスタイル+植栽]川崎市多摩区菅北浦M様邸外構・エクステリア・植栽工事着工前写真5](../images/images/ex09s16.jpg)
![ヴァリアス・ガーデンズの施工例外構工事[オープンスタイル+植栽]川崎市多摩区菅北浦M様邸外構工・エクステリア・植栽工事着工前写真6](../images/images/ex09s17.jpg)
![ヴァリアス・ガーデンズの施工例外構工事[オープンスタイル+植栽]川崎市多摩区菅北浦M様邸外構・エクステリア・植栽工事完成写真1](../images/images/ex09s18.jpg)
![ヴァリアス・ガーデンズの施工例外構工事[オープンスタイル+植栽]川崎市多摩区菅北浦M様邸外構・エクステリア・植栽工事完成写真2](../images/images/ex09s19.jpg)
![ヴァリアス・ガーデンズの施工例外構工事[オープンスタイル+植栽]川崎市多摩区菅北浦M様邸外構・エクステリア・植栽工事完成写真3](../images/images/ex09s20.jpg)
![ヴァリアス・ガーデンズの施工例外構工事[オープンスタイル+植栽]川崎市多摩区菅北浦M様邸外構・エクステリア・植栽工事完成写真4](../images/images/ex09s21.jpg)
![ヴァリアス・ガーデンズの施工例外構工事[オープンスタイル+植栽]川崎市多摩区菅北浦M様邸外構・エクステリア・植栽工事完成写真5](../images/images/ex09s22.jpg)
![ヴァリアス・ガーデンズの施工例外構工事[オープンスタイル+植栽]川崎市多摩区菅北浦M様邸外構・エクステリア・植栽工事完成写真6](../images/images/ex09s23.jpg)
![ヴァリアス・ガーデンズの施工例外構工事[オープンスタイル+植栽]川崎市多摩区菅北浦M様邸外構・エクステリア・植栽工事完成写真7](../images/images/ex09s24.jpg)
![ヴァリアス・ガーデンズの施工例外構工事[オープンスタイル+植栽]川崎市多摩区菅北浦M様邸外構・エクステリア・植栽工事完成写真8](../images/images/ex09s25.jpg)
![ヴァリアス・ガーデンズの施工例外構工事[オープンスタイル+植栽]川崎市多摩区菅北浦M様邸外構・エクステリア・植栽工事完成写真9](../images/images/ex09s26.jpg)
![ヴァリアス・ガーデンズの施工例外構工事[オープンスタイル+植栽]川崎市多摩区菅北浦M様邸外構・エクステリア・植栽工事完成写真10](../images/images/ex09s27.jpg)
![ヴァリアス・ガーデンズの施工例外構工事[オープンスタイル+植栽]川崎市多摩区菅北浦M様邸外構・エクステリア・植栽工事完成写真11](../images/images/ex09s28.jpg)
![ヴァリアス・ガーデンズの施工例外構工事[オープンスタイル+植栽]川崎市多摩区菅北浦M様邸外構・エクステリア・植栽工事完成写真12](../images/images/ex09s29.jpg)
![ヴァリアス・ガーデンズの施工例外構工事[オープンスタイル+植栽]川崎市多摩区菅北浦M様邸外構・エクステリア・植栽工事完成写真13](../images/images/ex09s30.jpg)
![ヴァリアス・ガーデンズの施工例外構工事[オープンスタイル+植栽]川崎市多摩区菅北浦M様邸外構・エクステリア・植栽工事完成写真14](../images/images/ex09s31.jpg)
![ヴァリアス・ガーデンズの施工例外構工事[オープンスタイル+植栽]川崎市多摩区菅北浦M様邸外構・エクステリア・植栽工事完成写真15](../images/images/ex09s32.jpg)
![ヴァリアス・ガーデンズの施工例外構工事[オープンスタイル+植栽]川崎市多摩区菅北浦M様邸外構・エクステリア・植栽工事完成写真16](../images/images/ex09s33.jpg)
![ヴァリアス・ガーデンズの施工例外構工事[オープンスタイル+植栽]川崎市多摩区菅北浦M様邸外構・エクステリア・植栽工事完成写真17](../images/images/ex09s34.jpg)