施 工 実 例|リフォーム外構工事
藤沢市片瀬【 T様邸 】
※各写真はクリックすると拡大してご覧いただけます。
<外構・エクステリア工事着工前!>
今回のお問い合わせ内容は、新築外構・エクステリア・植栽工事です。
御要望といたしましては、現況がオープン外構でして、門塀周りのデザイン変更や、履き出し窓の目隠し及び、駐車場の一部が、通行路になっているのでどうにかしたいとの御依頼でした!
<外構・エクステリア工事完成!>
リフォーム外構工事の為コストを考え、解体費用や新規製品の使用をなるべく押え、利用できる構造物などは利用いたしました。
まず、システムポールから門塀に変える為、門塀などは現況の化粧ブロックを利用し、デザインを変え、その壁にはポスト・表札・インターホンを取付し、アプローチには既存の玄関ポーチと同じタイルを施し、アプローチスペースの広さを出しました。
駐車場入り口の角部分が、道路形状上、通行路として入られてしまう為、お客様の私有地なので良い気分ではなく、履き出しの目隠しと兼ねてウッドフェンスをこの様にデザインいたしました。
ウッドフェンス・柱がある事により、私有地の境界部を第3者が認識出来るので、以前の様に通行路として入られなくなりました。
横浜市保土ヶ谷区【 M様邸 】
※各写真はクリックすると拡大してご覧いただけます。
<外構・エクステリア工事着工前!>
今回のお問い合わせ内容は、新築外構・エクステリア・植栽工事です。
とにかく暗いイメージなので明るくしたいとの事でした!
<外構・エクステリア工事完成!>
既存化粧ブロックを解体・新しく積み直しし、門扉・フェンスを同じデザインで揃え、製品色を明るい物にいたしました。
アプローチには、植物とも合う自然素材の物を使用し、少しでも明るいイメージをつくりました。
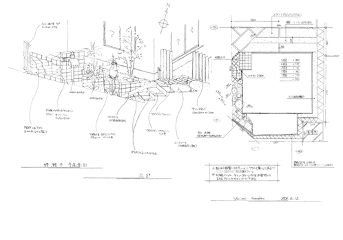
綾瀬市寺尾釜田【 U様邸 】
※各写真はクリックすると拡大してご覧いただけます。
<外構・エクステリア工事着工前!>
今回のお問い合わせ内容は、新築外構・エクステリア工事です。
既存のブロックを解体・新設し、門塀周りをリニューアルです。
<外構・エクステリア工事完成!>
玄関周りに必要な門塀・階段を造り、残りのスペースを植栽スペースとして考える事にいたしました。
当初、門塀の脇に自転車を置くスペースが出来ればと思い、建物基礎状態をお聞きしたのですが、深基礎で無い為自転車置場を断念し、自転車はお庭側へ置く事にし、アクセス部分をスロープと階段で造りました。
ポストには、ビビットカラーのオレンジ色を用い、同系色系で散水ポールもお付けいたしました。
全体の雰囲気といたしましては、落ち着いた感じに仕上がりました。
![ヴァリアス・ガーデンズの施工例外構工事[リフォーム外構工事]藤沢市片瀬T様邸外構工事着工前写真1](../images/images/ex03s62.jpg)

![ヴァリアス・ガーデンズの施工例外構工事[リフォーム外構工事]藤沢市片瀬T様邸外構工事着工前写真2](../images/images/ex03s63.jpg)
![ヴァリアス・ガーデンズの施工例外構工事[リフォーム外構工事]藤沢市片瀬T様邸外構工事着工前写真3](../images/images/ex03s64.jpg)
![ヴァリアス・ガーデンズの施工例外構工事[リフォーム外構工事]藤沢市片瀬T様邸外構工事着工前写真4](../images/images/ex03s65.jpg)
![ヴァリアス・ガーデンズの施工例外構工事[リフォーム外構工事]藤沢市片瀬T様邸外構・ウッドフェンス・植栽工事完成写真1](../images/images/ex03s66.jpg)
![ヴァリアス・ガーデンズの施工例外構工事[リフォーム外構工事]藤沢市片瀬T様邸外構・ウッドフェンス・植栽工事完成写真2](../images/images/ex03s67.jpg)
![ヴァリアス・ガーデンズの施工例外構工事[リフォーム外構工事]藤沢市片瀬T様邸外構・ウッドフェンス・植栽工事完成写真3](../images/images/ex03s68.jpg)
![ヴァリアス・ガーデンズの施工例外構工事[リフォーム外構工事]藤沢市片瀬T様邸外構・ウッドフェンス・植栽工事完成写真4](../images/images/ex03s69.jpg)
![ヴァリアス・ガーデンズの施工例外構工事[リフォーム外構工事]藤沢市片瀬T様邸外構・ウッドフェンス・植栽工事完成写真5](../images/images/ex03s70.jpg)
![ヴァリアス・ガーデンズの施工例外構工事[リフォーム外構工事]横浜市保土ヶ谷区M様邸外構工事着工前写真1](../images/images/ex03s71.jpg)

![ヴァリアス・ガーデンズの施工例外構工事[リフォーム外構工事]横浜市保土ヶ谷区M様邸外構工事着工前写真2](../images/images/ex03s72.jpg)
![ヴァリアス・ガーデンズの施工例外構工事[リフォーム外構工事]横浜市保土ヶ谷区M様邸外構工事着工前写真3](../images/images/ex03s73.jpg)
![ヴァリアス・ガーデンズの施工例外構工事[リフォーム外構工事]横浜市保土ヶ谷区M様邸外構工事着工前写真4](../images/images/ex03s74.jpg)
![ヴァリアス・ガーデンズの施工例外構工事[リフォーム外構工事]横浜市保土ヶ谷区M様邸外構工事着工前写真5](../images/images/ex03s75.jpg)
![ヴァリアス・ガーデンズの施工例外構工事[リフォーム外構工事]横浜市保土ヶ谷区M様邸外構・エクステリア工事完成写真1](../images/images/ex03s76.jpg)
![ヴァリアス・ガーデンズの施工例外構工事[リフォーム外構工事]横浜市保土ヶ谷区M様邸外構・エクステリア工事完成写真2](../images/images/ex03s77.jpg)
![ヴァリアス・ガーデンズの施工例外構工事[リフォーム外構工事]横浜市保土ヶ谷区M様邸外構・エクステリア工事完成写真3](../images/images/ex03s78.jpg)
![ヴァリアス・ガーデンズの施工例外構工事[リフォーム外構工事]横浜市保土ヶ谷区M様邸外構・エクステリア・植栽工事完成写真4](../images/images/ex03s79.jpg)
![ヴァリアス・ガーデンズの施工例外構工事[リフォーム外構工事]横浜市保土ヶ谷区M様邸外構・エクステリア・植栽工事完成写真5](../images/images/ex03s80.jpg)
![ヴァリアス・ガーデンズの施工例外構工事[リフォーム外構工事]横浜市保土ヶ谷区M様邸外構・エクステリア・植栽工事完成写真6](../images/images/ex03s81.jpg)
![ヴァリアス・ガーデンズの施工例外構工事[リフォーム外構工事]綾瀬市寺尾釜田U様邸外構工事着工前写真1](../images/images/ex03s82.jpg)

![ヴァリアス・ガーデンズの施工例外構工事[リフォーム外構工事]綾瀬市寺尾釜田U様邸外構工事着工前写真2](../images/images/ex03s83.jpg)
![ヴァリアス・ガーデンズの施工例外構工事[リフォーム外構工事]綾瀬市寺尾釜田U様邸外構工事完成写真1](../images/images/ex03s84.jpg)
![ヴァリアス・ガーデンズの施工例外構工事[リフォーム外構工事]綾瀬市寺尾釜田U様邸外構工事完成写真2](../images/images/ex03s85.jpg)
![ヴァリアス・ガーデンズの施工例外構工事[リフォーム外構工事]綾瀬市寺尾釜田U様邸外構工事完成写真3](../images/images/ex03s86.jpg)
![ヴァリアス・ガーデンズの施工例外構工事[リフォーム外構工事]綾瀬市寺尾釜田U様邸外構工事完成写真4](../images/images/ex03s87.jpg)
![ヴァリアス・ガーデンズの施工例外構工事[リフォーム外構工事]綾瀬市寺尾釜田U様邸外構工事完成写真5](../images/images/ex03s88.jpg)
![ヴァリアス・ガーデンズの施工例外構工事[リフォーム外構工事]綾瀬市寺尾釜田U様邸外構工事完成写真6](../images/images/ex03s89.jpg)